Das rechnet sich, ideale 3-ZKB-Whg. mit Balkon in zentraler u. ruhiger Lechhauser Lage

Objekt-Nr. 1250401#TgHNJn – Wohnung zum Kauf in Augsburg


Ansprechpartner

Robert Hackel

Telefon: +49 821 29 90 884
Telefax: +49 821 29 93 618

hackel@profimma.de

Kontakt aufnehmen

Eckdaten

Kaufpreis 309.300 €
Hausgeld 299 €
Adresse 86165 Augsburg
Wohnfläche ca. 72 m²
Nutzfläche ca. 4 m²

Beschreibung

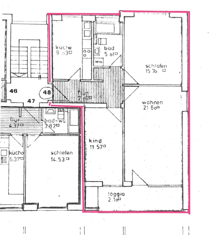
Die zum Verkauf stehende Immobilie ist eine gemütliche Etagenwohnung im 1. OG., bestehend aus 3-ZKB mit Balkon und einer Wohnfläche von ca. 72 Quadratmetern.

Das Gebäude wurde im Jahr 1972 erbaut, befindet sich in einem gepflegten Zustand und wurde über die Jahre hinweg ständig aktualisiert .

Die Wohnung verfügt über zwei Schlafzimmer, ein Badezimmer und eine geräumige Küche. Zum Entspannen steht ein gut nutzbarer West-Balkon zur Verfügung. Ein großer, massiver Keller mit Stromanschluss, bietet zusätzlichen Arbeits-/Stauraum.

Durch den erst vor kurzem erfolgten Anschluss an das Fernwärmenetz, ist eine energetisch zeitgemäße Wämeversorgung der Zentralheizung gesichert. Ein Parkplatz gehört ebenfalls zur Immobilie dazu.

Die Etagenwohnung besticht durch ihre funktionalen Räumlichkeiten und ihr helles, freundliches Ambiente. Die beiden Schlafzimmer bieten ausreichend Platz für eine kleine Familie oder Paare. Das Badezimmer ist modern ausgestattet und verfügt über eine bodenbündige Dusche und einen zusätzlichen Handtuchheizkörper.

Das Bad wurde vor einigen Jahren erneuert.
Es ist steht eine Einbauküche mit diversen Ober-/Unterschränken, als auch E-Herd u. Geschirrspüler zur Verfügung.

Die Immobilie eignet sich ideal für Personen, die auf der Suche nach einer bezahlbaren und gepflegten Wohnung sind. Die zentrale, aber dennoch ruhige Lage der Wohnung, wie auch die gute Anbindung an öffentliche Verkehrsmittel und Einkaufsmöglichkeiten, sind ein weiterer Pluspunkt für das Objekt.

Ein eigener Parkplatz nahe des Hauseinganges, rundet das Angebot positiv ab.

Sonstiges

Eine 3-ZKB-Whg.
-zentral in Augsburg-Lechhausen gelegen
-in einem ruhigen Wohnumfeld
-und dies kurzfristig nutbar,
so etwas gibt es nicht alle Tage.

Weiteres Interesse, noch offene Fragen oder ein Besichtigungswunsch?
Ja, dann sollten Sie zeitnah unseren Herrn Hackel (0172-9945704) kontaktieren.

Sie wissen ja, attraktive Wohnungsangebote wie das Vorliegende sind stets sehr begehrt, und daher schnell wieder vergeben.

Alle Daten und Unterlagen zu diesem Objektangebot wurden uns vom Verkäufer zur Verfügung gestellt, sodass wir für deren Richtigkeit etc., keinerlei Gewähr übernehmen können.

Ausstattungsbeschreibung

Die angebotene Wohnung befindet sich in einer in massiver Bauweise erstellten, voll unterkellerten Wohnanlage aus dem Jahre 1972.

Die Wohnanlage wurde im Laufe der Jahre ständig aktualisiert.

Als letzte größere Maßnahme, wurde die Wohnanlage erst vor kurzem an das Fernwärmenetz angeschlossen.

Gleiches gilt für die angebotenen Wohnung. Hier war eine der letzten Maßnahmen die Modernisierung des Bades.

Die Böden sind mit Laminat, Teppich oder Fliesen belegt. Es sind überall Kunststofffenster mit 2-fach Isolierverglasung verbaut.

Die Küche ist mit einer Küchenzeile, bestehend aus Ober-/Unterschränken sowie einem E-Herd uns einem Geschirrspüler etc. ausgestattet.

Ein großes, massives Kellerabteil mit Stromanschlüssen sowie ein oberirdischer Stellplatz unweit des Hauseinganges, gehört ebenfalls zur Wohnung.

Lagebeschreibung

Die Etagenwohnung befindet sich in dem äußerst beliebten Augsburger Stadtteil Lechhausen.

Die Umgebung zeichnet sich durch eine gute Infrastruktur mit Einkaufsmöglichkeiten, Schulen usw. aus. Das Wohnviertel ist geprägt von charmanten Altbauten und bietet eine angenehme Wohnatmosphäre. Die Anbindung an den öffentlichen Nahverkehr ist gut, sodass man schnell in die Innenstadt gelangen kann.

Augsburg, die drittgrößte Stadt Bayerns, besticht durch ihre kulturelle Vielfalt und historische Sehenswürdigkeiten. Die Altstadt mit ihren prächtigen Bauten, engen Gassen und gemütlichen Plätzen lädt zum Bummeln und Verweilen ein. Zudem bietet die Stadt ein breites Angebot an Restaurants, Cafés und Geschäften. Durch die hervorragende Verkehrsanbindung ist Augsburg auch ein idealer Ausgangspunkt für Ausflüge in die umliegende Natur.

Die Region um Augsburg ist bekannt für ihre vielfältigen Freizeit- und Erholungsmöglichkeiten. Das Umland lockt mit malerischen Landschaften, wie dem Naturpark Augsburg-Westliche Wälder, und zahlreichen Rad- und Wanderwegen. Zudem sind viele historische Städte und Sehenswürdigkeiten in der Umgebung leicht zu erreichen, was die Region zu einem attraktiven Wohnort für Naturliebhaber und Kulturfans macht.

Käuferprovision zzgl. MwSt

2,5 %

Ausstattung

Kellerfläche ca. 8 m²
Balkon/Terrassen Fläche ca. 6 m²
Zimmer 3
Anzahl Badezimmer 1
Anzahl Balkone 1
Anzahl Etagen 3
Anzahl Schlafzimmer 2
Anzahl Stellplätze 1
Bad mit Dusche, Fenster
Baujahr 1972
Befeuerungsart Fernwärme
Boden Fliesen, Teppich, Laminat
Provisionshinweis Die Provision wird mit notarieller Beurkundung fällig.
Lage im Objekt (Etage) 2
Heizungsart Zentralheizung
Küche Einbauküche
Lage/Gebiet Stadtteil
Modernisierungen 2017
Provisionspflichtig
Stellplätze 1
Stellplatzpreis 9.700 €
Stellplatzart Freiplatz
Unterkellert
verfügbar ab kurzfristig
Zustand gepflegt

Energieverbrauchsausweis

Endenergieverbrauch 128,70 kWh/(m²*a)
Befeuerungsart Fernwärme
Heizungsart Zentralheizung
Wesentlicher Energieträger Fernwärme
Baujahr (Energieausweis) 1972
Energieeffizienzklasse D
Gültig bis 22.10.2037
Energieausweis 2014

0200400+


Objekt-Nr. 1250401#TgHNJn – Wohnung zum Kauf in Augsburg

Zurück zu den Immobilienangeboten

Erfolg! Vielen Dank für Ihre Bewertung.

Fehler! Bitte füllen Sie alle Felder aus.