Wow, 3,5-ZKB-Dachterrassenwhg. mit Wohndiele, Terr. 30 m², Balkon, Lift im Schmutterpark

Objekt-Nr. 72203118 – Wohnung zur Miete in Neusäß


Ansprechpartner

Robert Hackel

Telefon: 0821 2990884
Telefax: +49 821 29 93 618

info@profimma.de

Kontakt aufnehmen

Eckdaten

Miete zzgl. NK 1.248 €
Adresse 86356 Neusäß
Wohnfläche ca. 104 m²
Balkon/Terrassen Fläche ca. 4,02 m²
Zimmer 3,50

Beschreibung

Wir bieten aktuell ein besonderes Mietangebot an, eine 3,5 Zimmer-Dachterrassenwohnung, welche neben einer Gesamtwohnfläche von ca. 104 m² auch noch über eine ca. 35 m² Dachterrasse plus kleinem Balkon (4 m²) verfügt.

Das Ganze befindet sich in einer beliebten und gepflegten Wohnanlage aus dem Baujahr ca. 1987.

Die Wohnung liegt in der 4. Etage und ist barrierefreiem per Lift oder auch Treppe gut erreichbar. Neben einem Kellerabteil, steht auch noch ein Tiefgaragenstellplatz zur Verfügung.

Die Räumlichkeiten der Wohnung sind wie folgt aufgeteilt:
*Wohnzimmer, *Schlafzimmer, *Kinderzimmer, *Wohndiele mit Essecke, *Küche, *Bad u. Abstellraum.

Das Bad ist mit Wanne u. Dusche ausgestattet, die Böden sind größtenteils mit Parkett als auch Laminat, Fliesen etc. belegt.

Eine Fußbodenheizung in allen Wohnräumen sorgt dafür, dass es auch in den kalten Monaten gemütlich warm ist. Die großzügige Terrasse als auch der kleine Balkon, bieten ausreichend Platz für das Aufstellen von Gartenmöbeln und Entspannen im Freien.

Auch die Infrastruktur ist vom Feinsten.
Ob Einkaufsmöglichkeiten wie Super-, Getränke, Drogeriemärkte, oder Bank/Sparkasse, Ärzte, Kindergärten u. Schulen, alles ist sozusagen fußläufig um die Ecke, bzw. in ein paar Gehminuten erreichbar.

Die Wohnung ist sowohl für Familien, Paare, als auch für Senioren bestens geeignet. Der gepflegte Zustand des Gebäudes sorgt für ein angenehmes Wohnambiente und lädt zum Wohlfühlen ein.

Sonstiges

Ein wirklich einmaliges und seltenes Immobilienangebot zur Miete, mit mehreren Optionen.

Neben der Möglichkeit einer befristeten Anmietung, können wahlweise auch gewisses Einrichtungsgegenstände mit übernommen werden.

Eine Anmietung ist ab 01.10.25 geplant.

Weiteres Interesse, Besichtigungswunsch und/oder noch Fragen?
Ja, dann sollten Sie uns zeitnah kontaktieren, damit die Immobilie nicht schon wieder vergeben ist.

Gerne klären wir mit Ihnen nach vorheriger Terminvereinbarung, eine individuelle Wohnungsbesichtigung ab. Kontaktieren Sie uns hierzu.

Alle Angaben sind freibleibend, unverbindlich, ohne Gewähr und basieren ausschließlich auf Informationen vom Eigentümer bzw. Dritten. Wir können deshalb keine Haftung für Vollständigkeit, Richtigkeit und Aktualität der Angaben garantieren.

Ausstattungsbeschreibung

Die angebotene Dachterrassenwohnung befindet sich in einer gepflegten, in massiver Bauweise erstellten Wohnanlage aus dem Baujahr ca. 1987.

Regelmäßige Sanierungen in den vergangenen Jahren an Fassade, Tiefgarage, Heizung (Blockheizkraftwerk), neue Lifte etc., haben die Qualität der Wohnanlage optimiert.

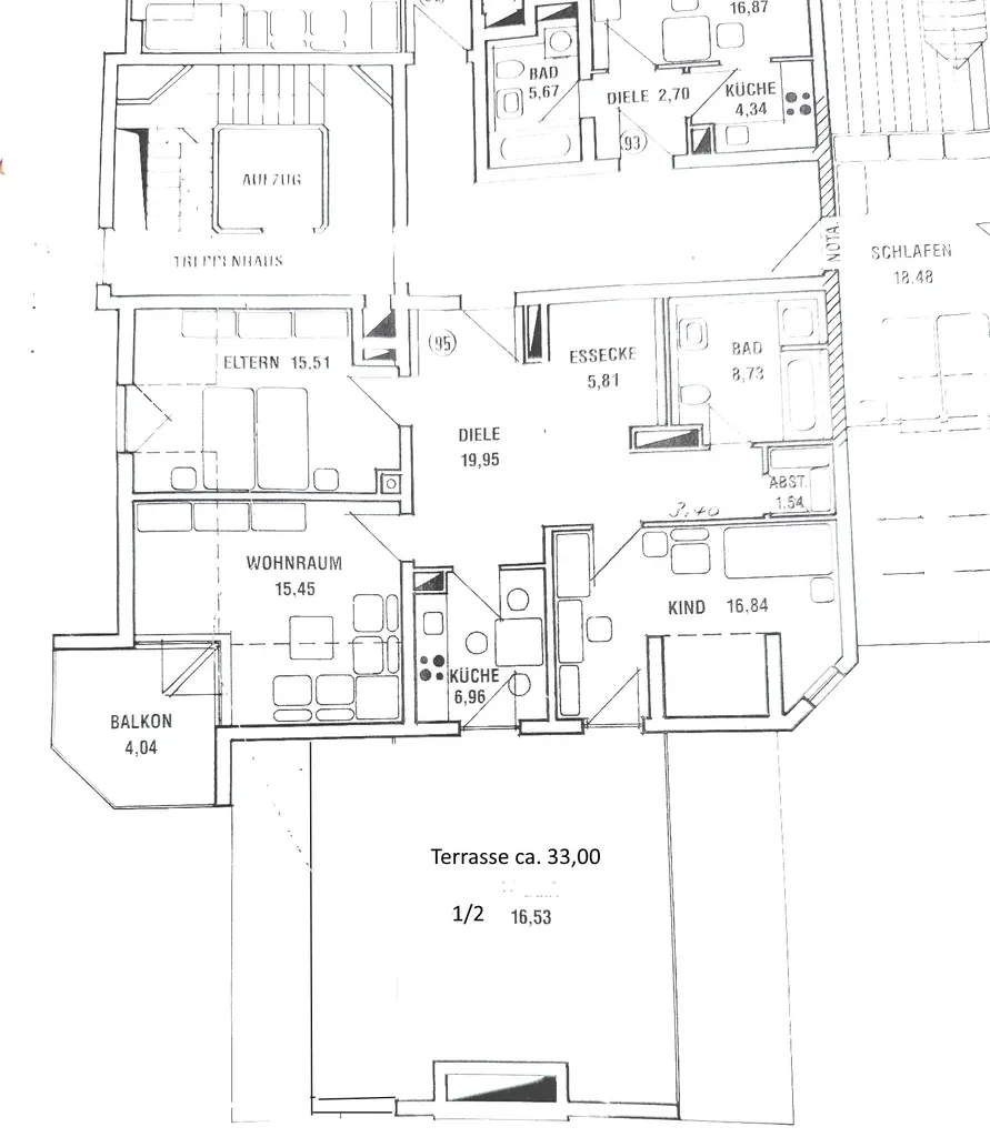
Die Dachterrassenwohnung im 4. OG ist wie folgt aufgeteilt.
-Wohnzimmer 15,45 m²
-Wohndiele 19,95 m²
-Essbereich 5,81 m²
-Schlafzimmer 15,51 m²
-Küche 6,96 m²
-Kinderzimmer 16, 84 m²
-Bad 8,73 m²
-Abstellraum 1,54 m²
-Balkon (1/2) 2,03 m²
-Terrasse (1/2) 16,53 m²

Die Wohnanlage/der Hauseingang verfügt über einen Lift, mit barrierefreiem Zugang von allen Etagen.

Die Whg. besitzt eine Einbauküche mit diversen Ober-/Unterschränken sowie E-Herd, Kühl-Gefrierkombination, Geschirrspüler etc.

Lagebeschreibung

Neusäß mit seinen ca. 21.000 Einwohnern, grenzt direkt an Augsburg und an den Naturpark Westliche Wälder an und zählt zu den gefragtesten Wohnstandorten in und um Augsburg.

Die Dachterrassenwohnung befindet sich im Neusässer Schmutterpark und hier in einem äußert angenehmen und beliebten Wohnumfeld.

Besonders zu erwähnen ist die hervorragende Infrastruktur des Wohnumfeldes, welches jungen wie auch älteren Personen, alle Annehmlichkeiten bietet.

Im Haus bzw. in der Wohnanlage befinden sich u.a. Bäckerei und Metzgerei, diverse Ärzte, Friseure, Reformhaus, Sparkasse, Zeitungsladen, Massagepraxis, Reisebüro usw..

In Sichtweite bzw. im nahen Umfeld und somit fußläufig erreichbar hat man Supermärkte wie Kaufland, Lidl, Aldi, Norma, Alnatura, dm Drogeriemarkt, Sobi Getränkemarkt oder auch Apotheke usw.

Vor dem Haus bzw. um die Ecke befinden sich die Haltestellen der öffentlichen Verkehrsmittel von Bussen nach Augsburg.

Neusäß verfügt über 2 Bahnhöfe, welche u.a. auch bei Münchenpendler sehr beliebt sind.
Mit dem PKW ist man in ca. 5 Minuten an der BAB A 8 oder der B2/B17.

Aber auch Kindergärten und Grund-/Hauptschule (300 m), Mittelschule oder auch Gymnasium, alles ist im nahen/näheren, auch fußläufigen Umfeld zu erreichen.

Zum Augsburger Universitätsklinikum sind es nur 5 Fahrminuten.

Viele Vereine, Spazier-/Wanderwege, das Titania Erlebnisbad etc., sowie der Naturpark westliche Wälder sind ein Garant für einen hohen Freizeitwert.

Ausstattung

Anzahl Badezimmer 1
Anzahl Balkone 1
Anzahl Etagen 4
Anzahl Schlafzimmer 2
Anzahl Stellplätze 1
Kategorie Standard
Bad mit Dusche, Wanne
Barrierefrei
Baujahr 1987
Befeuerungsart Gas
Boden Fliesen, Parkett, Laminat
Provisionshinweis Provisionsfrei
Lage im Objekt (Etage) 4
Fahrstuhl Personen
Heizungsart Fußbodenheizung
Küche Einbauküche
Modernisierungen 2024
Provisionspflichtig
Tiefgaragenstellplätze 1
Stellplatzmiete (Tiefgarage) 65 €
Stellplatzart Tiefgarage
Unterkellert
verfügbar ab kurzfristig
Zustand gepflegt

Energieverbrauchsausweis

Endenergieverbrauch 140 kWh/(m²*a)
Energieverbrauch inkl. Warmwasser
Befeuerungsart Gas
Heizungsart Fußbodenheizung
Wesentlicher Energieträger Gas
Energieeffizienzklasse E
Gültig bis 29.04.2024
Energieausweis Ausstellungsdatum 2014-04-30

0200400+


Objekt-Nr. 72203118 – Wohnung zur Miete in Neusäß

Zurück zu den Immobilienangeboten

Erfolg! Vielen Dank für Ihre Bewertung.

Fehler! Bitte füllen Sie alle Felder aus.